Tủ Hút Khí Độc Có Ống Dẫn Huco HMF-BN Series
Hãng sản xuất: HUCO
Xuất xứ: Hàn Quốc
Liên hệ ngay
Tổng quan
Thông số kỹ thuật
Tài liệu
Tủ Hút Khí Độc Có Ống Dẫn Huco HMF-BN Series bảo vệ hiệu quả các nhà nghiên cứu khỏi các chất ô nhiễm bằng cách nhanh chóng loại bỏ các khí độc hại được tạo ra trong các thí nghiệm hóa học. Phần tủ phía dưới cùng tạo điều kiện thuận tiện cho việc lưu trữ thiết bị thí nghiệm và hơn thế nữa.

Đặc điểm nổi bật của Tủ hút khí độc dạng thổi khí sử dụng trong phòng thí nghiệm (BYPASS FUME HOODS) – Huco HMF-BN

- Thiết kế ống dẫn giúp loại bỏ nhiễu loạn và khí bên trong nhanh chóng
- Điều khiển thuận tiện với bộ điều khiển màn hình cảm ứng 1,9 inch
- Độ bền cao với vật liệu được phủ lớp epoxy, chống ăn mòn và nhiễm bẩn
- Khả năng kháng hóa chất tuyệt vời với nội thất laminate phenolic
- Thiết kế ít tiếng ồn cho một môi trường nghiên cứu thoải mái
- Hiệu suất thiết bị được tối đa hóa với các tùy chọn quạt gió khác nhau
- Có thể tăng cường tính an toàn với tùy chọn lower exhaust cabinet

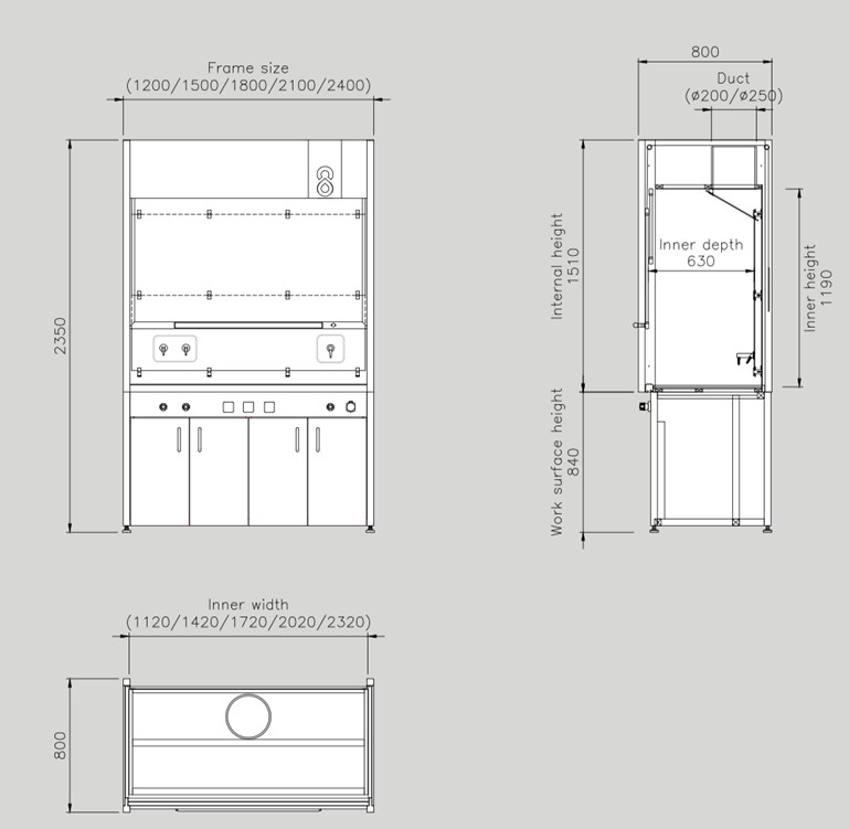
| Model | HMF-BN12 | HMF-BN15 | HMF-BN18 | HMF-BN21 | HMF-BN24 |
| Kích thước ngoài
(WxDxH) |
1200 | 1500 | 1800 | 2100 | 2400 |
| 800 | |||||
| 2350 | |||||
| Kích thước trong (WxDxH) | 1120 | 1420 | 1720 | 2020 | 2320 |
| 630 | |||||
| 1510 | |||||
| Thể tích thải (CMM) | 10 – 21 | 13 – 27 | 16 – 33 | 19 – 40 | 23 – 46 |
| Đường kính ống thải (mm) | 200 | 250 | 250 | 300 | 300 |
| Động cơ quạt hút (tùy chọn) | 1/4HP | 1/2HP | 1/2HP | 1HP | 1HP |
| Công suất điện | 2250W | 2250W | 2250W | 2400W | 2400W |
| Vật liệu ngoài | Thép SS41 với lớp phủ chống ăn mòn | ||||
| Vật liệu trong | Phenolic laminate P.P. Stainless steel |
||||
| Bề mặt làm việc | Phenolic laminate P.P. P.V.C. Stainless steel Ceramite |
||||
| Cửa trượt (Sash) | Tempered safety glass Aluminum Frame |
||||
| Thiết kế cửa trượt | Trượt dọc và kết hợp trợ lực | ||||
| Độ mở cửa tối đa (mm) | 770 | ||||
| Bộ điều khiển | 1.9″ touchscreen (HM-TX19) | ||||
| Tính năng khác | Có thể thêm ổ cắm điện bên trong
Tùy chọn thêm van và vòi khí bên trong Tùy chọn thêm tính năng điều chỉnh thể tích khí làm việc (VAV) Tùy chọn thêm Khung treo gắn phía sau Tùy chọn thêm lớp phim an toàn cho cánh cửa sash Tùy chọn thêm Exhaust Cabinet (lower) |
||||
Catalog thiết bị hãng Huco
Để lại thắc mắc, chúng tôi sẽ giải đáp ngay cho bạn
VN