Tủ Hút Khí Độc Với Bàn Thấp Huco HMF-LW Series
Hãng sản xuất: HUCO
Xuất xứ: Hàn Quốc
Liên hệ ngay
Tổng quan
Thông số kỹ thuật
Sản phẩm & cấu hình
Tài liệu
Tủ Hút Khí Độc Với Bàn Thấp Huco HMF-LW Series được thiết kế để cho phép các nhà nghiên cứu làm việc từ các vị trí thấp hơn bằng cách hạ thấp chiều cao nhằm lắp đặt các trạm phát điện, đồng thời ưu tiên tuân thủ các chức năng cơ bản.

Đặc điểm nổi bật của Tủ hút khí độc dạng bàn làm việc thấp sử dụng trong phòng thí nghiệm (LOW WORKTOP FUME HOODS) – Huco HMF-LW Series

- Hiệu suất thí nghiệm được nâng cao với bàn làm việc thấp hơn so với tủ hút truyền thống
- Thiết kế ống dẫn giúp loại bỏ khí thải nhiễu loạn và tồn dư
- Điều khiển thuận tiện với màn hình điều khiển cảm ứng 2,8 inch (Tùy chọn thêm)
- Tủ được sơn tĩnh điện epoxy bền bỉ với khả năng ăn mòn và chống ô nhiễm
- Bên trong sử dụng lớp Phenolic Laminate cho khả năng kháng hóa chất tuyệt vời
- Thiết kế tiếng ồn thấp cho môi trường nghiên cứu thoải mái
- Tối đa hóa khả năng vận hành thiết bị với các tùy chọn quạt hút khí thải khác nhau

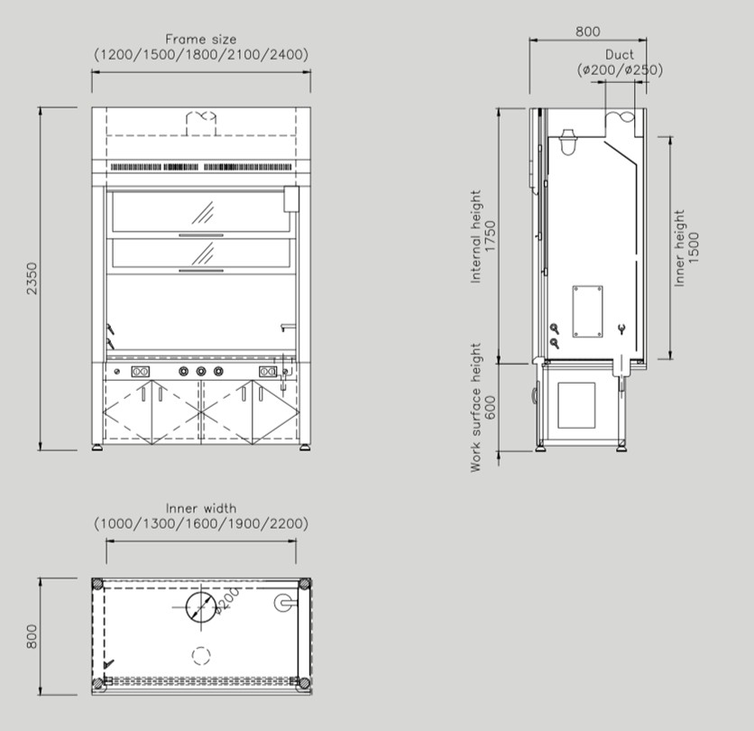
| Model | HMF-LW12 | HMF-LW15 | HMF-LW18 | HMF-LW21 | HMF-LW24 |
| Kích thước ngoài
(WxDxH) |
1200 | 1500 | 1800 | 2100 | 2400 |
| 800 | |||||
| 2350 | |||||
| Kích thước trong (WxDxH) | 1020 | 1320 | 1620 | 1920 | 2220 |
| 635 | |||||
| 1000 | |||||
| Thể tích thải (CMM) | 10 – 21 | 13 – 27 | 16 – 33 | 19 – 40 | 23 – 46 |
| Đường kính ống thải (mm) | 200 | 250 | 250 | 300 | 300 |
| Động cơ quạt hút (tùy chọn) | 1/4HP | 1/2HP | 1/2HP | 1HP | 1HP |
| Công suất điện | 2250W | 2250W | 2250W | 2400W | 2400W |
| Vật liệu ngoài | Thép SS41 với lớp phủ chống ăn mòn | ||||
| Vật liệu trong | Phenolic laminate | ||||
| Bề mặt làm việc | Phenolic laminate | ||||
| Cửa trượt (Sash) | Tempered safety glass Aluminum moulding, cửa 2 cấp |
||||
| Tiện ích | Có van kết nối các khí Air, N₂, C/W | ||||
| Đèn chiếu sáng | LED | ||||
| Độ mở cửa tối đa (mm) | 770 | ||||
| Bộ điều khiển | 2.8″ LCD touch screen (tùy chọn) | ||||
| Chân đến | Dạng cố định | ||||
Catalog sản phẩm HUCO
Để lại thắc mắc, chúng tôi sẽ giải đáp ngay cho bạn
VN